Cabine distribuidora do SUS 304 cosméticos verticais altos da indústria do fluxo de ar da limpeza
Introdução
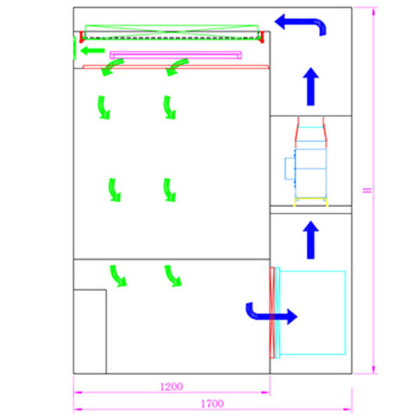
A cabine dispenging é um equipamento parcial especial da purificação usado na fabricação, nos cosméticos, na pesquisa microbiológica e em experiências científicas. Fornece um fluxo de ar unidirecional vertical. A parte do ar puro de-é circulada durante o trabalho e a parte é descarregada às áreas próximas para fazer o trabalho que a pressão negativa é gerada na área impedir a infecção cruzada e usada para assegurar um ambiente alto da limpeza na área de trabalho.
Parâmetro
Desenho de projeto

