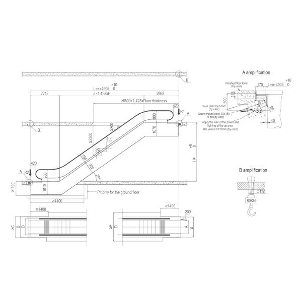
Esboço da construção da escada rolante do arranjo K de SN-XDM35° único (interno)
Escada rolante interna/exterior 0.5m/S do arranjo K de 35 °/30 ° única
Reagindo a força
| Largura da etapa | 600 | 800 | 1000 | Observações |
| R1 (KN) | 3.5xL+15.5 | 4xL+17 | 4.5xL+18.5 | A unidade de L é M |
| R2 (KN) | 3.5xL+10 | 4xL+11 | 4.5xL+11.5 |
Tabela das regras da parte superior da escada rolante interior da extensão
| Poder | |||||
| Largura da etapa | <15KW | 15KW | 2x11KW | 2x15KW | |
| NENHUM VVVF | 600 | 417 | 417 | / | / |
| 800 | 0 | 0 | 500 | / | |
| 1000 | 0 | 0 | 500 | 800 | |
| VVVF | 600 | 417 | 417 | / | / |
| 800 | 0 | 200 | 500 | / | |
| 1000 | 0 | 0 | 500 | 800 | |
Medidor de poder (velocidade 0.5m/s da largura 1000mm da etapa)
| 5.5KW | 8KW | 11KW |
| 1.5m≤H≤3.5m | 3.5m<H≤5.0m | 5.0m<H≤6.0m |
Especificação padrão e dimensão
| Modelo | XDM-600K | XDM-800K | XDM-1000K | |
| Largura da etapa | 600 | 800 | 1000 | |
| Largura decorativa | B | 1140 | 1340 | 1540 |
| Construção aberta largura | C | 1200 | 1400 | 1600 |
| Afastamento do corrimão | D | 838 | 1038 | 1238 |
| Construção aberta largura | E | 1778 | 1978 | 2178 |
Especificação (tipo da Único-fileira room1500)
| Modelo | SN-XDM/SN-XCM/SN-XFT35-600K | |
| SN-XDM/SN-XCM/SN-XFT35-800K | ||
| SN-XDM/SN-XCM/SN-XFT35-1000K | ||
| Velocidade | 0.5m/s | |
| Altura | H≤6000mm | |
| Ângulo | 35° | |
| Apoio forceR1 | KN | |
| Apoio forceR2 | KN | |
| Peso | KN | |
| Poder fonte | Poder | C.A. trifásica 380V 50Hz |
| Iluminação | C.A. 220V 50Hz da fase monofásica | |


FAQ
1. São as cordas de fio do elevador duráveis?
A corda de fio do elevador tem disposições especiais e exigências. A configuração é não somente para a corda de fio e a carga avaliado, mas igualmente considerou o tamanho da tração, em consequência, a resistência à tração da corda de fio é maior do que o peso do elevador. O fator de segurança é equipado com a corda mais do que de quatro fios. Assim não quebrará ao mesmo tempo.
2. É perigoso para a falha de energia de repente durante o corredor do elevador?
Se ocorre, o elevador parará automaticamente devido ao dispositivo de segurança elétrico e mecânico. Em caso da falha de energia, os freios do elevador tomado automaticamente. Além, os departamentos da fonte de alimentação tais como a indisponibilidade de planeamento, observação prévia igualmente estão operando-se.
3. Querem-nos para ser ferido quando se fechou de repente?
No processo de fechamento, se os povos tocam na porta do salão, a porta do elevador reiniciará automaticamente sem nenhum perigo. Com anti interruptor de aperto, uma vez que a porta tocou, esta ação do interruptor faz o elevador incapaz de ser fechado e reaberto mesmo. Além, a força de fechamento está igualmente disponível aqui.
4. Como a corrida do elevador?
Os elevadores são operados com uma corda de fio do contrapeso através da movimentação da tração (do trator), fazendo altos e baixos no trilho de guia.
5. A instalação da escada rolante é complicada?
Nós acreditamos que as funções de uma escada rolante não são necessariamente proporcionais à complexidade da operação. Consequentemente, as escadas rolantes projetadas por nós aplicam uma estrutura integrada, de modo que o equipamento seja mais preciso e mais eficiente e permita uma comissão mais fácil e mais conveniente.
6. Você tem algum cerifications?
Sim, nós fazemos com os certificados de ISO9001/CCC/CE para o U.