O cilindro hidráulico da série 2H redefine o desempenho, a durabilidade e a operação sem problemas.Material de alta qualidade e práticas de fabricação rigorosas reforçam a longa vida útil dos cilindros e reduzem os custos operacionais.
Os cilindros são concebidos com características como a glândula da haste "Jewel", hastes de pistão cromadas duras e almofadas escalonadas, melhorando assim a produtividade, reduzindo o tempo de inatividade,Tempo de ciclo mais rápido e melhoria da eficiência do sistema.
Cada cilindro Parker é exaustivamente testado antes de sair da fábrica, o que garante um bom funcionamento e zero fugas operacionais.seleção do cilindro hidráulico Parker série 2H é a melhor decisão para as suas exigências de aplicação hidráulica de trabalho pesado.
O Selo de Rodas TS-2000 foi concebido para ser completamente à prova de vazamento.A sua característica única de autocompensação e auto-relieving é capaz de suportar quaisquer variações possíveis e lidar eficazmente com qualquer deflexão mecânica potencial.
O Double-Service WipersealTM foi especialmente concebido para limpar qualquer película de óleo que se tenha aderido à haste durante o curso de extensão e limpá-la no curso de retorno.
Estas hastes são feitas de aço carbono médio, o endurecimento por indução, cromagem e polir até 10 RMS, tornam-nas incrivelmente resistentes.O material tem sempre um rendimento mínimo entre 85Os diâmetros maiores podem variar entre 57.000 e 90.000 psi, dependendo do diâmetro da haste.
As portas padrão são as portas de anel SAE, embora as portas NPTF estejam disponíveis como opcional sem custo adicional.
Para o máximo de desempenho, estas almofadas proporcionam um desempenho superior na redução de choques.extremidade da tampa ou ambas, sem afectar o revestimento global ou as dimensões de montagemSão opcionais e uma opção económica para as aplicações mais exigentes.
A superfície larga do pistão que entra em contato com o furo do cilindro reduz as cargas de rolamento, e um adesivo anaeróbico é usado para fornecer uma conexão segura duradoura entre o pistão e a haste.
O cilindro de óleo hidráulico TRH1.50MF1LT14X6.00 da Parker é um componente importante para equipamentos industriais.Tem uma pressão nominal de 3000 psi e é capaz de suportar cargas de tensão de JO modelo é projetado para trabalhar com óleo hidráulico e vem com uma cabeça quadrada padrão.Será embalado em caixas e pode ser entregue dentro de 1-7 dias úteis após o pagamentoOs termos de pagamento incluem T/T, Western Union e Paypal. A capacidade de fornecimento é de 5000 PCs por mês.
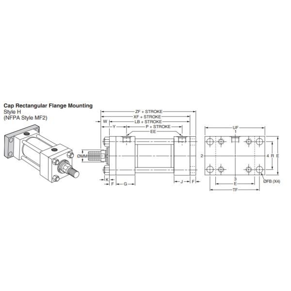
Instalações de flanges J, JB, JJ, H, HB e HH
Aplicação:
• Transferência de força em linha reta
• Cargas de compressão (empurrão) ¢ utilizar H, HB ou HH
• Cargas de tensão (puxar)
Vantagens:
• Instalação rígida da base devido à grande área da flange
• A força é transferida ao longo da linha do centro do cilindro
| Estilo H Dados dimensional e de montagem | ||||||
| Ø | - Não, não. | Rod Ø | W | Y | Adicione o Traço | |
| XF | ZF | |||||
| 1.50 | 1 (std.) | 0.625 | 0.63 | 2 | 5.63 | 6.00 |
| 2 | 1.000 | 1 | 2.38 | 6.00 | 6.38 | |
| 2.00 | 1 (std.) | 1.000 | 0.75 | 2.38 | 6.00 | 6.63 |
| 2 | 1.375 | 1 | 2.63 | 6.25 | 6.88 | |
| 1 (std.) | 1.000 | 0.75 | 2.38 | 6.13 | 6.75 | |
| 2.50 | 2 | 1.750 | 1.25 | 2.88 | 6.63 | 7.25 |
| 3 | 1.375 | 1 | 2.63 | 6.38 | 7.00 | |
| 1 (std.) | 1.375 | 0.88 | 2.75 | 7.13 | 7.88 | |
| 3.25 | 2 | 2.000 | 1.25 | 3.13 | 7.50 | 8.25 |
| 3 | 1.750 | 1.13 | 3 | 7.38 | 8.13 | |
| 1 (std.) | 1.750 | 1 | 3 | 7.63 | 8.50 | |
| 4.00 | 2 | 2.500 | 1.38 | 3.38 | 8.00 | 8.88 |
| 3 | 2.000 | 1.13 | 3.13 | 7.75 | 8.63 | |
| 1 (std.) | 2.000 | 1.13 | 3.13 | 8.25 | 9.13 | |
| 5.00 | 2 | 3.500 | 1.38 | 3.38 | 8.50 | 9.38 |
| 3 | 2.500 | 1.38 | 3.38 | 8.50 | 9.38 | |
| 4 | 3.000 | 1.38 | 3.38 | 8.50 | 9.38 | |
| 1 (std.) | 2.500 | 1.25 | 3.5 | 9.63 | 10.63 | |
| 6.00 | 2 | 4.000 | 1.25 | 3.5 | 9.63 | 10.63 |
| 3 | 3.000 | 1.25 | 3.5 | 9.63 | 10.63 | |
| 4 | 3.500 | 1.25 | 3.5 | 9.63 | 10.63 | |

O nosso cilindro hidráulico personalizado foi concebido para fornecer uma força hidráulica potente, fiável e consistente para uma variedade de aplicações industriais.Nosso dispositivo de cilindro hidráulico é feito de material de aço premium e é equipado com uma faixa de temperatura de -10 ° F a +165 ° FOferecemos um serviço de cilindros hidráulicos personalizados para as suas necessidades específicas.
Fornecemos cilindros hidráulicos de alta qualidade para aplicações industriais, incluindo cilindro hidráulico e cilindro de força hidráulica.e estão disponíveis em uma variedade de cores e tamanhosOferecemos preços competitivos e tempo de entrega rápido.
Se estiver à procura de um dispositivo hidráulico de cilindro fiável e rentável, contacte-nos para mais pormenores.
Fornecemos suporte técnico e serviço para o nosso produto de cilindros de óleo hidráulico.Os nossos técnicos podem ajudar na resolução de problemasTambém fornecemos serviços especiais, como fabricação personalizada, reparos e substituições.
Oferecemos uma gama completa de serviços para ajudá-lo a maximizar a eficiência e confiabilidade do seu cilindro de óleo hidráulico.Nossa equipe de técnicos experientes está disponível para fornecer suporte técnico e serviço para quaisquer problemas que você possa terTambém fornecemos serviços de reparo e substituição para qualquer peça que possa precisar de substituição ou reparo. Temos a experiência e a experiência para lidar com quaisquer problemas de reparo ou instalação que você possa ter.
Esforçamo-nos para fornecer a mais alta qualidade de serviço e apoio para os nossos clientes.Estamos empenhados em fornecer o melhor serviço ao cliente e suporte técnico para garantir que seu produto esteja funcionando da forma mais eficiente e confiável possívelA nossa equipa está disponível para responder a quaisquer perguntas que possam ter e prestar assistência com quaisquer problemas técnicos ou preocupações que possam ter.