Positioner Eletro-pneumático de Fisher 3620JP
Os positioners pneumáticos de Fisher 3610JP são usados em combinação com os atuadores giratórios de efeito duplo exatamente às válvulas de controle da posição usadas em aplicações de estrangulamento. Estes positioners ásperos fornecem uma posição da válvula proporcional a um sinal atual pneumático ou da C.C. de entrada e montam-na integralmente ao alojamento do atuador.
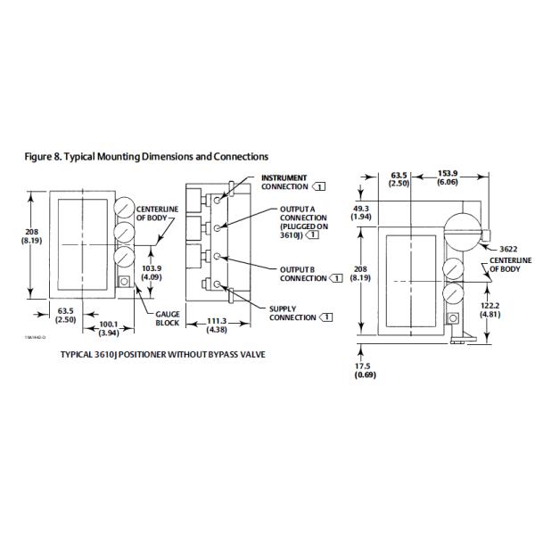
Especificações
Classificação da área: Gás da categoria 2 do grupo II de ATEX e poeira, CUTR para o equipamento da categoria 2 dos grupos II/III
Certificações: ATEX, CUTR, PED
Protocolo de comunicação: 3-15 ou 6-30 libras por polegada quadrada, 0,2 sinais pneumáticos de -1,0 ou 0,4 -2,0 barras
Diagnósticos: Não
Sinal entrado: Pneumático
Max Outlet Pressure: 150 libras por polegada quadrada
Montando o tipo: Atuador montado
Temperatura de funcionamento: Temperatura padrão, alta temperatura
Controle de posição: Modulação
Certificação de segurança: NADA
Meios da fonte: Ar, gás natural
Outras configurações: Contacte seu escritório local do sócio comercial ou de vendas de Emerson para aprender sobre especificações ou opções adicionais para este produto.
Características
Sinal entrado
3610J, 3610JP, e 3611JP: Padrão: barra 0,2 a 1,0 (3 a 15 psig), barra 0,4 a 2,0 (6 a 30 psig),
Ajustável: Zero é ajustável de 0,07 à barra 1,5 (1 a 22 psig) para rotações da válvula ou cursos padrão da válvula. O período é ajustável de 0,2 à barra 2,0 (3,2 a 28,8 libras por polegada quadrada) para rotações da válvula ou cursos padrão da válvula.
3620J, 3620JP, e 3621JP: 4 à corrente constante da C.C. de 20 miliampère com 30 VDC de tensão máxima da conformidade. A tensão terminal mínima é 2,4 VDC em 20 miliampères.
Procura máxima do ar da fonte
3610J e 3620J:
fonte de 1,4 barras (20 Psig): 13 m3/hour normais (scfh 490)
fonte de 2,4 barras (35 Psig): 17 m3/hour normais (scfh 640)
3610JP, 3620JP, 3611JP, e 3621JP:
5,2 fonte da barra (75 Psig): 37 m3/hour normais (scfh 1380)
6,9 fonte da barra (100 Psig): 46 m3/hour normais (scfh 1700)
Peso aproximado
positioners 3610J: 2,5 quilogramas (5,6 libras)
positioners 3620J: 3,6 quilogramas (8,0 libras)


Nós podemos entrega a carga transportar a empresa no prazo de 3 dias em cima da recepção das cargas da planta
Nenhuma pergunta, por favor não hesita contactar-me.
entrega 1.Swift
Para as peças comuns, nós podemos entregar os bens no prazo de 3 dias
produtos 2.Original
Todos os produtos que nós vendemos são do fabricante da origem. Nós submeteremos toda a documentação do fabricante quando nós terminarmos a entrega.
segurança 3.Quality
apoio 4.Technical
Incluindo a inspeção, o reparo e a manutenção, nós podemos dar todos os tipos do suporte laboral.
resposta 5.Quickly
Nosso pessoal manterá 24h em linha e responderá a sua pergunta muito rapidamente.

A tecnologia Co. de Xiangjing (Shanghai) M&E, Ltd é uma válvula e o distribuidor do instrumento para uma série de tipos famosos mundiais apenas gosta
Emerson, Fisher, Rosemount, Masoneilan, Flowserve, Rotork, etc.
Nós temos muitos modelos comuns no estoque, de modo que nós possamos oferecer nosso serviço no curto período de tempo mesmo. Nosso escritório é situado em Shanghai, nós dá boas-vindas a sua visita!
Q. quanto tempo você precisará antes da entrega?
: Nós temos muitos modelos comuns no estoque, de modo que nós possamos entregar os bens muito logo (menos de 3 dias).
Q.What é seu pagamento termo?
: Normalmente T/T 30% adiantado, equilíbrio a ser pagado antes da entrega, nós igualmente apoiamos a segurança de comércio, O/A.
Q: Que é segurança de comércio?
: A segurança de comércio é um serviço gratuito por Alibaba.com que é projetado ajudar a criar a confiança entre compradores e fornecedores. A segurança de comércio ajuda compradores no caso do envio e de disputa qualidade-relacionada.
Q: Fazem a segurança de comércio as taxas da carga?
: No. a segurança do comércio está livre para ambos os compradores e fornecedores.
Q: Que tipo dos termos de comércio pode você fazer?
: À SAÍDA DA FÁBRICA, CORRENTE DE RELÓGIO, CFR, CIF, etc.